
Мы работаем без предоплаты. Вы платите только по завершению этапа строительства

Почувствуйте атмосферу вашего будущего дома
| С отделкой 1 440 000 руб | |
|---|---|
Фундамент | Опорно столбчатый фундаментные блоки 300х500 мм. на песчаной подушке |
Гидроизоляция | Двойная гидроизоляция фундамента |
Коммуникации | Ввод закладных труб для канализации и водоснабжения по согласованию с Заказчиком |
Наружные стены | Оцилиндрованное бревно Ø 200 мм. Ø220, 240 (опция) |
Капитальные перегородки | Оцилиндрованное бревно Ø 200 мм. Ø220, 240 (опция) |
Соединение бревна | Деревянные нагеля |
Рубка углов | “Теплый угол” в перевязку с коренным шипом “в обло” выпуски бруса за пределы капитальных стен |
Утепление и шумоизоляция | Профессиональный утеплитель на основе каменной ваты повышенной плотности Технониколь или ROCKWOOL Пол 1 этажа — 50 мм. Потолок — 50 мм |
Полы | Черновой пол обрезная доска 25 мм. Чистовой пол OSB 18 мм. Подготовка для ламината и плитки |
Стропильная система и обрешетка | Выполняется из качественной доски 1 сорт 150х40мм. Обрешетка из доски 100х25мм. производится обработка антисептиком |
Потолок | Подшивается вагонкой камерной сушки |
Высота 1-ого этажа | 2150 мм. |
Кровля | Ондулин (цвет на выбор) Металлочерепица (опция) Гибкая черепица “TEGOLA”, “KATEPAL” (опция) |
Свесы и подбои | Вагонка |
Окна | Окна ПВХ — ПОДАРОК Собственное производство. Профиль KBE, фурнитура ROTO. |
Двери | Входная дверь металлическая, утепленная. Два замка, ночная задвижка. |
Террасы и эркеры | Входят в стоимость проекта при наличии на чертеже. Дополнительной оплаты не требуется. |
Антисептирование | Обрабатываются лаги первого этажа, нижние венцы |
Обустройство парной | Стены и потолок обшиваются осиной вагонкой класс Б, Выполняются двухъярусные пологи, В парной специальная дверь для саун |
Вентиляция | Обустройство вентиляции в парном помещении |
Печь | Банная печь с установкой — Подарок монтаж осуществляется профессиональной бригадой печников (имеют допуск МЧС). |
Отделка душевой | Стены и потолок обшиваются хвойной вагонкой камерной сушки |

— Разработка проекта

— Перепланировка БЕСПЛАТНО

— Подготовка комплекта документов для согласования в БТИ

— Выезд специалиста на объект

Мы подготовили ответы на все популярные вопросы, их можно посмотреть здесь
Получите бесплатную консультацию
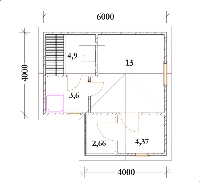
Бревенчатая баня BS17 выполнена в традиционном русском стиле — это классика, проверенная временем. Толстое оцилиндрованное бревно сохраняет тепло, излучает аромат натуральной древесины и создает уникальную атмосферу уюта. Внутреннее пространство полностью соответствует потребностям любителей настоящей русской парилки. Массивные стены из бревна выглядят внушительно и основательно, такая баня прослужит десятилетия, сохраняя первозданную эстетику и даря здоровье всей семье.