
Мы работаем без предоплаты. Вы платите только по завершению этапа строительства

Почувствуйте атмосферу вашего будущего дома
| С отделкой 1 390 290 руб | |
|---|---|
Фундамент | Свайно-Винтовой фундамент D 108 мм. L 2500 мм. Ленточный фундамент — опционально |
Материал | Используем сухой материал камерной сушки |
Коммуникации | Ввод закладных труб для канализации и водоснабжения по согласованию с Заказчиком. |
Силовой каркас | Силовой каркас первого этажа и фронтоны выполняются из качественной доски 150х40 мм. C шагом 590 мм. |
Утепление и шумоизоляция | Используется только профессиональный утеплитель на основе каменной ваты повышенной плотности Технониколь и ROCKWOOL (производится из натуральных природных компонентов вулканических пород базальтовой группы), соответствует международным требованиям качества ISO-9001 |
Толщина стены | 200 мм |
Вентилируемый фасад | Имитация бруса камерной сушки 9-12% влажности |
Внутренние стены и потолок | Вагонка камерной сушки 9-12% влажности |
Высота потолка | 2500 мм |
Кровля | Металлочерепица Гибкая черепица “TEGOLA”, “KATEPAL” (опционально) |
Свесы и подбои | Вагонка камерной сушки 9-12% влажности |
Пол | Черновой пол выполняется из доски 25 мм, чистовой пол выполняется из OSB-3 толщиной 18 мм |
Окна | ПВХ цвет белый |
Дверь | Входная дверь металлическая, утепленная. Два замка, ночная задвижка |
Межэтажная лестница | Деревянная лестница |
Терраса и балконы | Входит в стоимость проекта при наличии на чертеже |
Обустройство парной | Стены и потолок обшиваются осиной вагонкой класс Б, Выполняются двухъярусные пологи, В парной специальная дверь для саун |
Вентиляция | Обустройство вентиляции в парном помещении |
Печь | Банная печь с установкой — Подарок монтаж осуществляется профессиональной бригадой печников (имеют допуск МЧС). |
Отделка душевой | Стены и потолок обшиваются хвойной вагонкой камерной сушки |

— Разработка проекта

— Перепланировка БЕСПЛАТНО

— Подготовка комплекта документов для согласования в БТИ

— Выезд специалиста на объект

Мы подготовили ответы на все популярные вопросы, их можно посмотреть здесь
Получите бесплатную консультацию
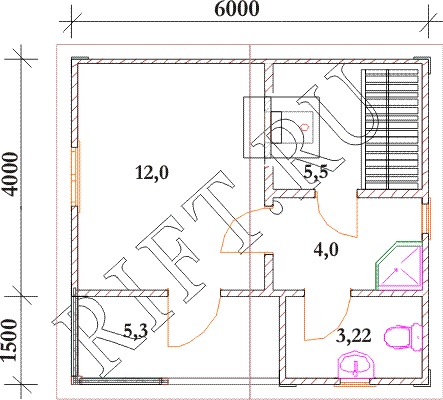
Каркасная баня BS27 размером 6×6 м — удобное и быстро возводимое решение для загородного участка. Несмотря на компактные размеры, планировка включает парилку, моечную и комфортную комнату отдыха. Каркасная конструкция обеспечивает быструю постройку и отличную теплоизоляцию. Идеальный выбор для дачи: экономично, практично и уютно. Может использоваться круглый год при правильном утеплении.