
Мы работаем без предоплаты. Вы платите только по завершению этапа строительства

Почувствуйте атмосферу вашего будущего дома
| Без отделки 4 170 000 руб | С отделкой 5 626 720 руб | |
|---|---|---|
Фундамент | Свайно-Винтовой фундамент D 108 мм. L 2500 мм. Ленточный фундамент — опционально | |
Материал | Используем сухой материал камерной сушки | |
Коммуникации | Ввод закладных труб для канализации и водоснабжения по согласованию с Заказчиком. | |
Силовой каркас | Силовой каркас первого этажа и фронтоны выполняются из качественной доски 150х40 мм. C шагом 590 мм. | |
Утепление и шумоизоляция | Используется только профессиональный утеплитель на основе каменной ваты повышенной плотности Технониколь и ROCKWOOL (производится из натуральных природных компонентов вулканических пород базальтовой группы), соответствует международным требованиям качества ISO-9001 | |
Толщина стены | 200 мм | |
Вентилируемый фасад | OSB-3 | Имитация бруса камерной сушки 9-12% влажности |
Внутренние стены и потолок | ✕ | Вагонка камерной сушки 9-12% влажности |
Высота потолка | 2500 мм | |
Кровля | Металлочерепица Гибкая черепица “TEGOLA”, “KATEPAL” (опционально) | |
Свесы и подбои | ✕ | Вагонка камерной сушки 9-12% влажности |
Пол | Черновой пол выполняется из доски 25 мм, чистовой пол выполняется из OSB-3 толщиной 18 мм | |
Окна | ПВХ цвет белый | |
Дверь | Входная дверь металлическая, утепленная. Два замка, ночная задвижка | |
Межэтажная лестница | Техническая | Деревянная лестница |
Терраса и балконы | Входит в стоимость проекта при наличии на чертеже | |

— Разработка проекта

— Перепланировка БЕСПЛАТНО

— Подготовка комплекта документов для согласования в БТИ

— Выезд специалиста на объект
Наша компания Дом Рифт разработала новейший проект – Каркасный дом DG44. Этот дом сочетает в себе эстетику, комфорт и функциональность, ставшие визитной карточкой нашей компании. С общей площадью 139, этот дом предлагает просторное проживание для всей вашей большой семьи. Этажность в 1 этаж этажей подчеркивает не только стиль, но и удобное размещение комнат внутри. Размер – 14×11 позволяет удобно и комфортно размещать вещи и предметы интерьера в комнате, без визуального уменьшения пространства. Мы используем передовые материалы, включая [Материал], чтобы обеспечить долговечность и энергоэффективность вашего будущего дома. Наши специалисты учитывают также ваши пожелания, чтобы каждый аспект дизайна и конструкции соответствовал ожиданиям. Преимущества сотрудничества с нами очевидны: Мы гарантируем быстрое выполнение проекта dg44. Срок реализации составляет всего 30 дней дней, что позволит вам как можно скорее переехать в ваш новый дом. Цена проекта составляет всего 4395875. Кроме того, мы предоставляем гибкую систему кредитования, начиная всего с 70 334, что делает покупку недвижимости еще более доступной для вас. Мы используем современные технологии строительства, такие как Каркас, гарантируя вам надежность и безопасность каждого элемента вашего дома. Наши строители работают с соблюдением всех техник безопасности и проходят проверку со стороны руководства. Это гарантирует надежность, долговечность и безопасность вашего будущего дома. Наша цель – создать для вас пространство, где вы будете чувствовать себя комфортно и уютно. Доверьте нам реализацию вашей мечты о собственном доме, и мы обеспечим вам лучший результат.

Мы подготовили ответы на все популярные вопросы, их можно посмотреть здесь
Получите бесплатную консультацию
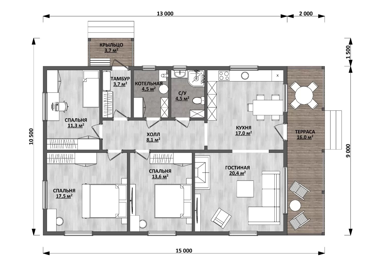
Проект каркасного дома DG44 от компании RIFT — это современный и удобный дом с продуманной планировкой, который идеально подойдет для загородного проживания. Площадь дома составляет 106 м², а его размеры — 9×9 м, что позволяет разместить в нем все необходимые зоны для комфортной жизни. Каркасная конструкция гарантирует быстрый и экономичный процесс строительства, при этом дом обладает отличной теплоизоляцией и энергоэффективностью.
В проекте предусмотрены просторная гостиная, кухня, несколько спален и удобные санузлы, что делает дом идеальным выбором для большой семьи. Просторные окна обеспечивают достаточное количество естественного света и прекрасный вид на окружающую природу.